|
||
S residence project |
||
| 主要用途:個人住宅 | ||
| 設計期間:2015年7月~2015年9月 | ||
| 設計フェーズ:コンセプト デザイン | ||
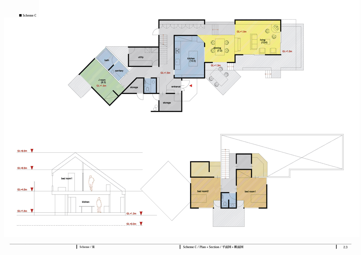
建築面積:121.00 ㎡ |
||
延床面積:180.00 ㎡ |
||
規模 :地上 2階、建物高さ 8.50m |
||
構造概要:在来木造 |
||
吉野弘建築設計事務所:吉野弘 梅岡恒治 津田一輝 |
||
| 自然豊かな山の中腹に計画された住宅。敷地の緩やかな傾斜と周囲に広がる素晴らしい景観を活かすように配置計画が進められた。また、温度、光、風向きなどの感覚的に扱いがちな環境的要素を数値的に可視化させプランニングに反映させていった。これらのスタディを綿密に繰り返すことで、敷地のもつポテンシャルを最大限引き出し、そこでしか成立しえない場所性を獲得することを目論んでいる。 | ||
Copyright © 2016 Hiroshi Yoshino Architects